-

Szűrő

X

Search




Real estate

2047 - Kehidakustány

Price: 168 000 €

2047 - Kehidakustány

Structure-ready family house for sale in the popular spa town of Kehidakustány!

 

Mediterranean-style house for sale in a quiet, family-friendly neighborhood, only 1 km from the thermal baths.

The plot is 898 m2 and flat. Construction began in accordance with local building regulations in the LK-1 residential zone. The building was constructed according to plan up to the shell stage. The design documentation and building permit are available.

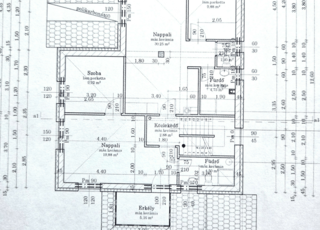
The ground floor has 82 m2 of living space, a 20 m2 garage, and two terraces measuring 15 m2 and 5 m2.

The attic has 84 m2 of buildable space and two balconies measuring 7 m2 and 5 m2.

The interior layout and mechanical systems can be modified as required.

This practically designed house is suitable for a multi-generational family home and, after the construction of two apartments in the attic with separate staircases, it is also very advantageous for accommodating holiday guests.

 

The thermal baths in the village offer relaxation opportunities for families.

Zala Springs Golf Resort is only 1 km away, Hévíz with its famous thermal lake is 8 km away, and Keszthely - Lake Balaton is 10 km away.

 

In a lively village, close to a beautiful swimming pool and thermal baths, you can relax and enjoy the benefits of your own home.

Paraméterek:

  • Number of property: 2047
  • Settlement: Kehidakustány
  • Region: Hévíz-Keszthely and its surroundings
  • Property conditions: Structure-ready
  • Lot nm: 898 m2
  • Property nm: 166 m2
  • Year of construction: 2019
  • Number of rooms: 4
  • Number of bathrooms: 3
  • Terrace, balkony: terraces 15 m2, 5 m2 and balconies 7 m2, 5 m2
  • Garden: yes
  • Garage: 20 m2
  • Orientation: south

Related gallery






Back to the previous page!
Angi Immo Hévíz-Keszthely-Balaton - MagyarAngi Immo Hévíz-Keszthely-Balaton - NémetAngi Immo Hévíz-Keszthely-Balaton - Angol